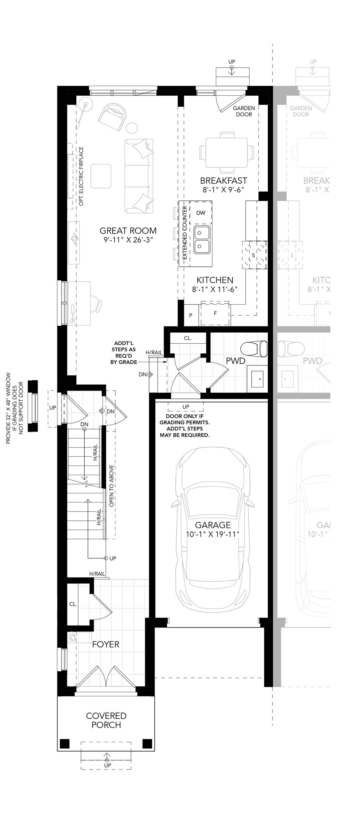
Discover the Alexandra—a contemporary semi-detached home that pairs smart design with everyday comfort. The L-shaped kitchen with an island forms the heart of the home, flowing seamlessly into a spacious great room—perfect for daily living and entertaining. A large garage adds practical storage and convenience, while upstairs, the tranquil primary bedroom retreat includes a private ensuite and walk-in closet. Two additional bedrooms, a full bathroom, and a well-placed laundry room provide the functionality today’s families need. The basement offers future potential, with rough-in plumbing for an optional bathroom and space for cold storage. Thoughtfully designed options throughout allow you to tailor the Alexandra to your lifestyle. Experience the Alexandra—a home where comfort and versatility come together beautifully.

“Greater Home” by Great Gulf, is our promise to offer homeowners a better built home.
Learn More
Ground Floor
Second Floor
Basement
Basement - Full House Selection
4th Bedroom - Full House SelectionAnother Great Gulf community, perfect for family living. Interested in learning more? Get in touch with us by completing the form .