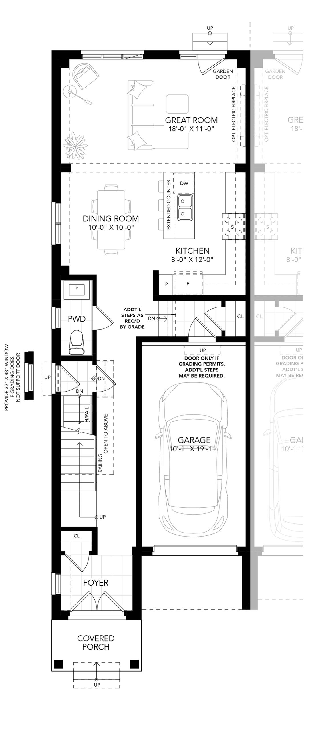
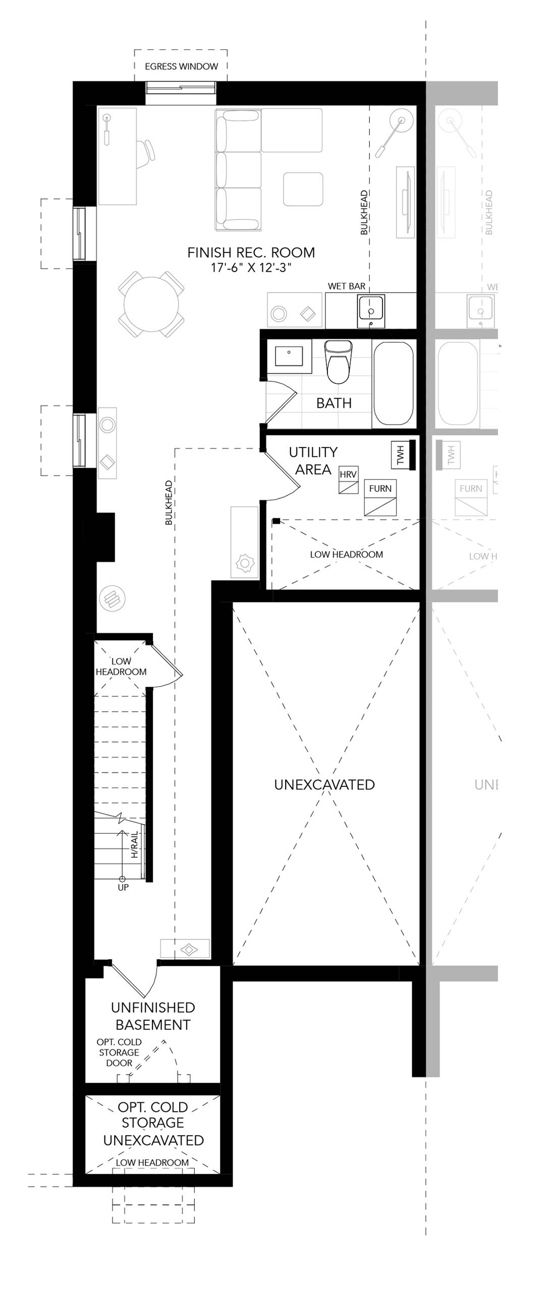
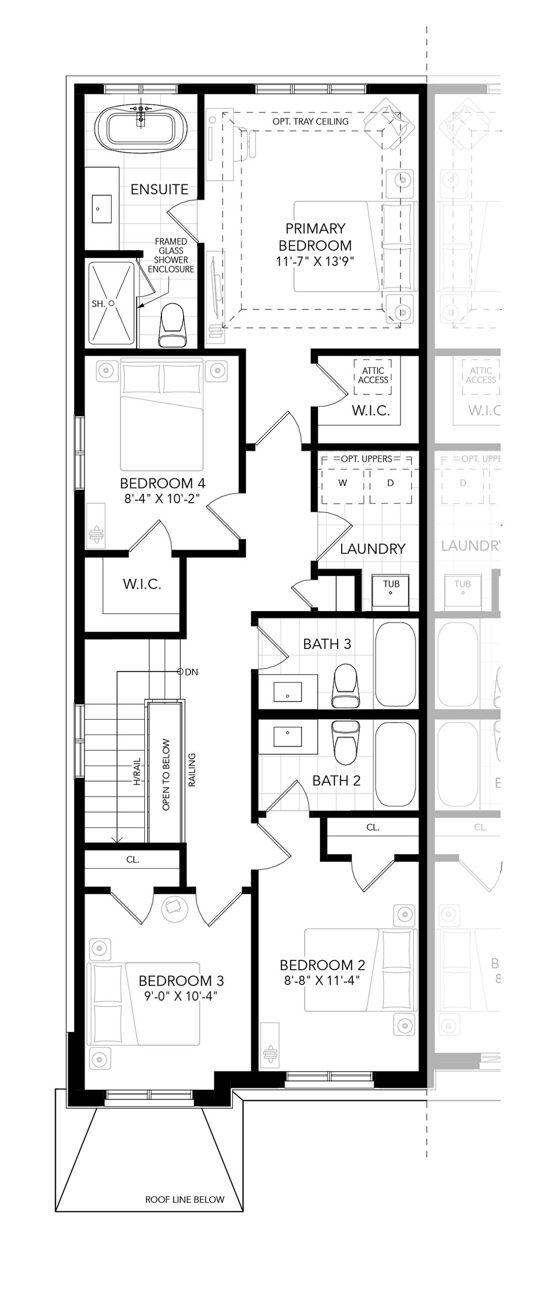
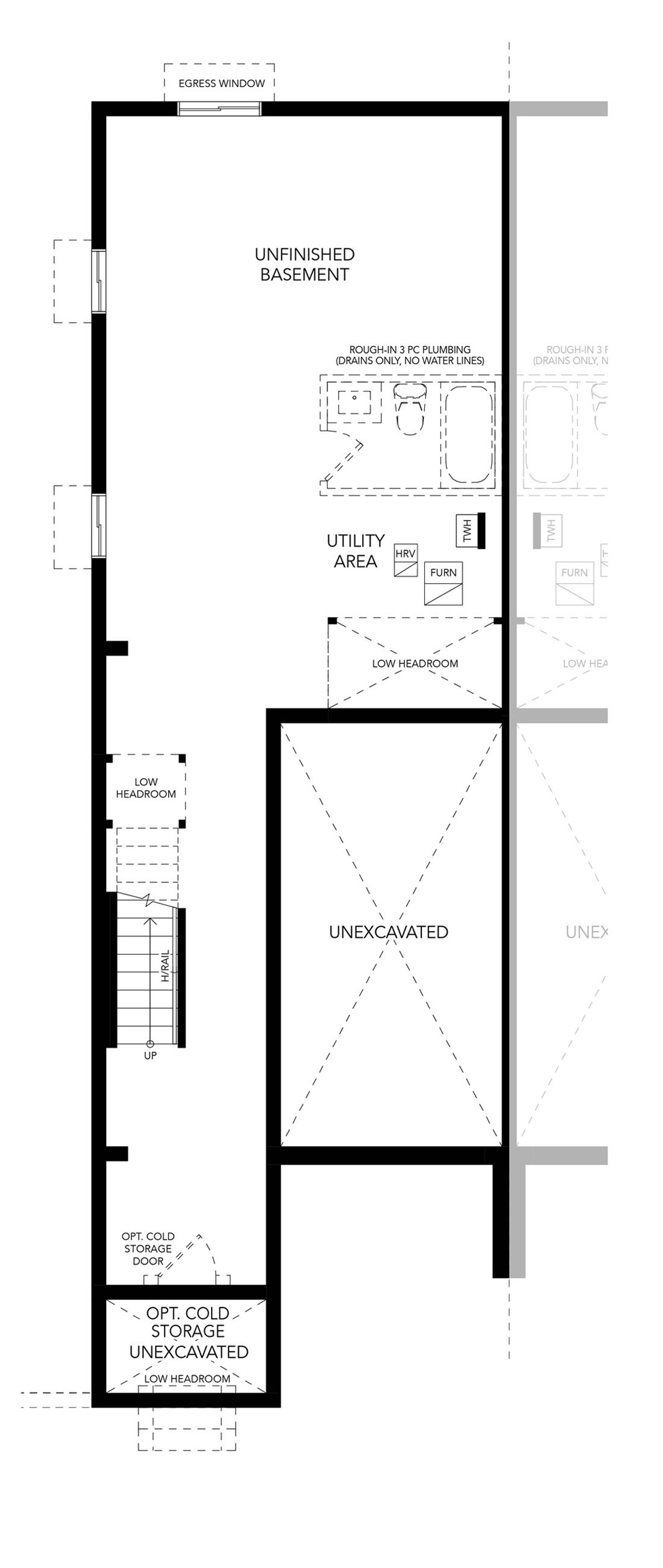
Discover the Cedarstone—a beautifully designed semi-detached home that blends thoughtful layout with everyday functionality. The L-shaped kitchen with a central island anchors the main floor, seamlessly connecting to a spacious great room—perfect for both relaxed living and entertaining. A large garage adds ample storage and daily convenience, while upstairs, the serene primary bedroom retreat boasts a private ensuite and dual walk-in closets. Two additional bedrooms, a full bathroom, and a dedicated laundry room provide the space families need. The basement is ready for future expansion, with rough-in plumbing for an optional bathroom and room for cold storage. Flexible layout options let you personalize the Cedarstone to reflect your lifestyle. Experience the Cedarstone—a home where comfort, style, and practicality meet.

“Greater Home” by Great Gulf, is our promise to offer homeowners a better built home.
Learn More
Ground Floor
Second Floor
Basement
Basement - Full House Selection
Options - Full House SelectionAnother Great Gulf community, perfect for family living. Interested in learning more? Get in touch with us by completing the form .