Skip to content
 Featured elevation rendering of the The Emeline floorplan
The Emeline
Elevation A Shown
Five Creeks Estates

The Emeline

singles 40' |1920 - 1930 sq.ft.

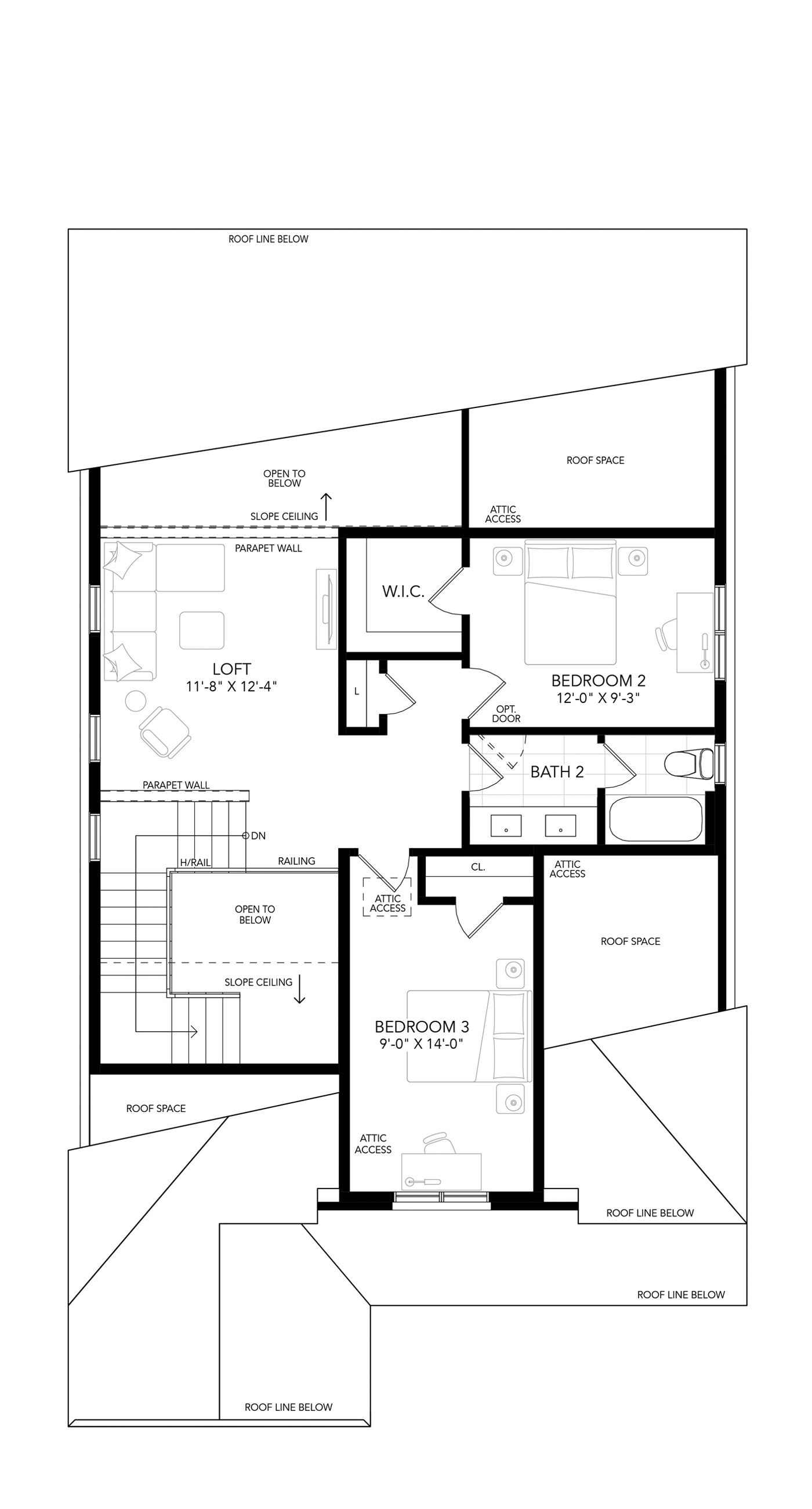
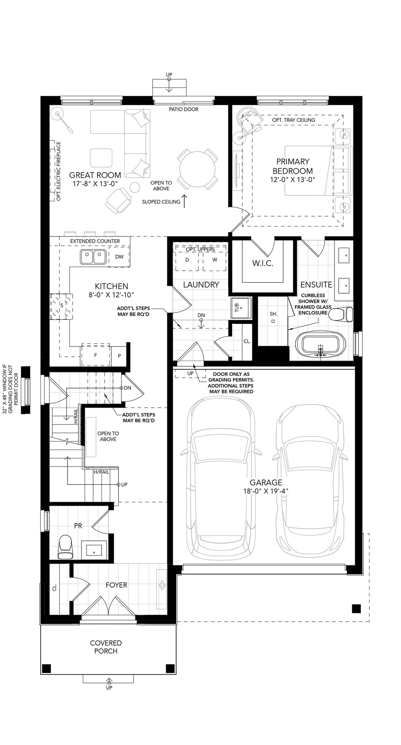
Discover The Emeline—a beautifully designed 40′ detached bungaloft that blends comfort and functionality. The U-shaped kitchen with island is perfect for both cooking and entertaining, while the large garage offers plenty of storage space. The great room is ideal for family gatherings, and the convenient laundry room adds practicality. The primary bedroom retreat features an ensuite and walk-in closet, providing a private space to relax. Upstairs, two additional bedrooms and a full bathroom are complemented by a versatile loft area. The basement includes rough-in plumbing for an optional bathroom and space for cold storage. With an open design and adaptable layout, The Emeline is crafted to complement your lifestyle.

3
2.5

Floorplan Details

Download Floorplan
Greater Home Guarantee Seal of Approval

“Greater Home” by Great Gulf, is our promise to offer homeowners a better built home.

Learn More

Interested?
Let us know!

Another Great Gulf community, perfect for family living. Interested in learning more? Get in touch with us by completing the form .

Loading...