Skip to content
 Featured elevation rendering of the The Springbrook floorplan
The Springbrook
Elevation A Shown
Five Creeks Estates

The Springbrook

singles 40' |2495 sq.ft

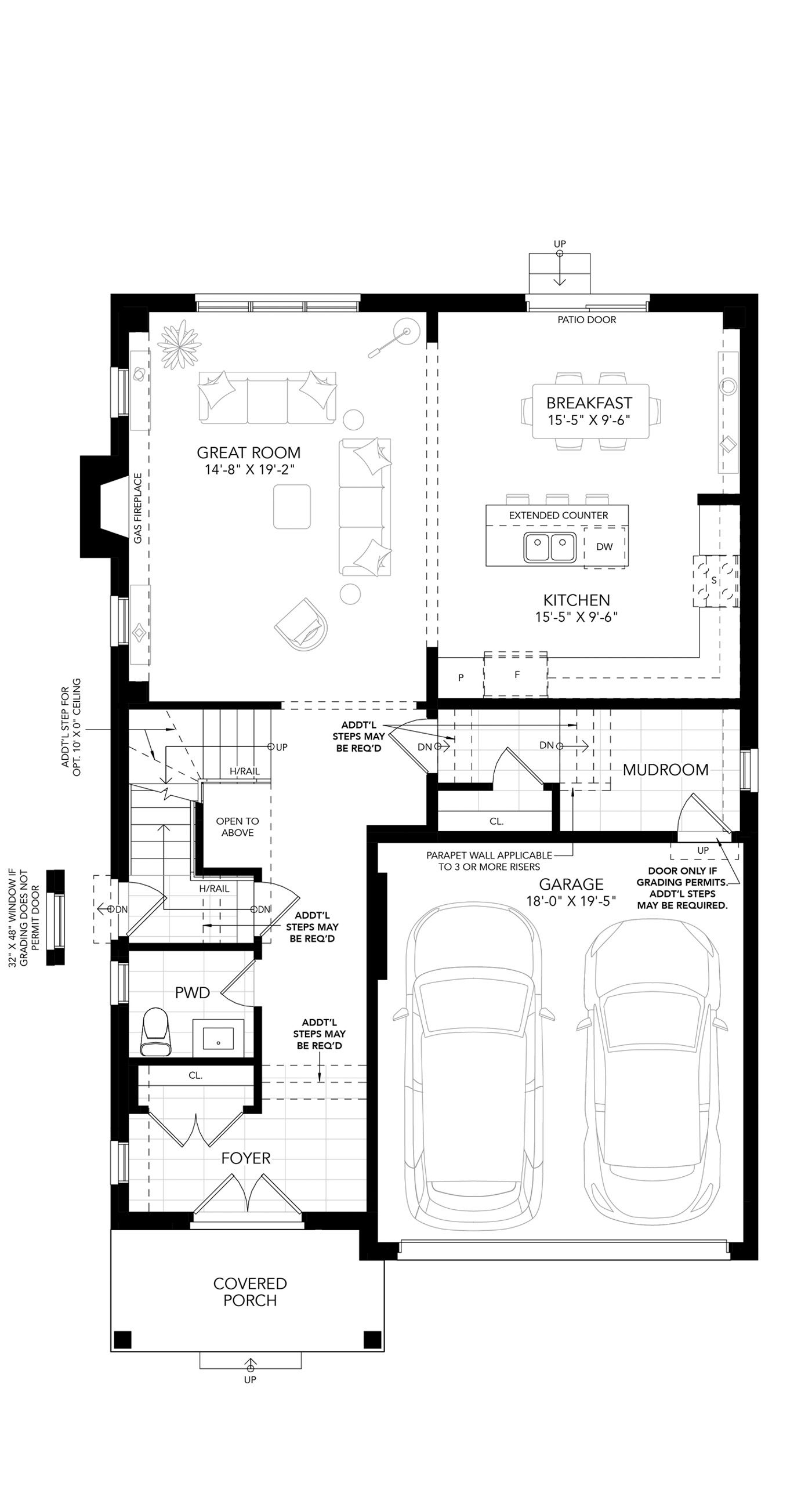
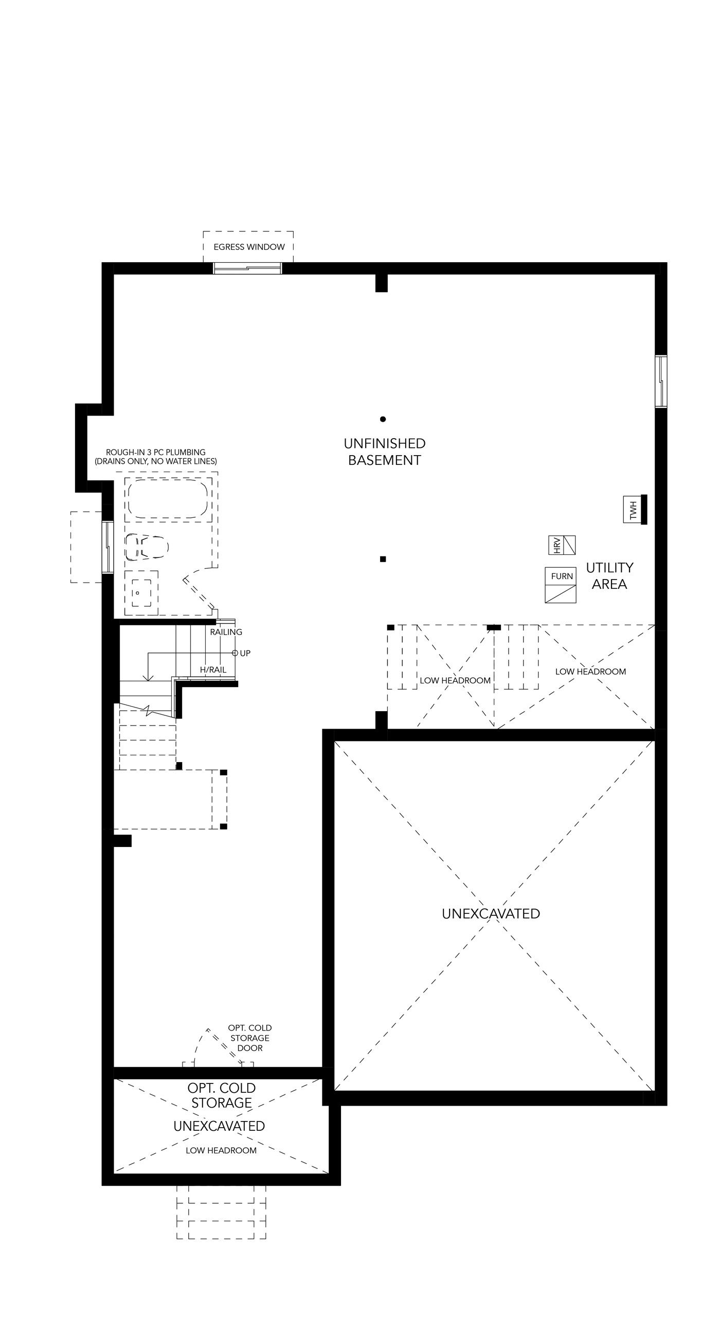
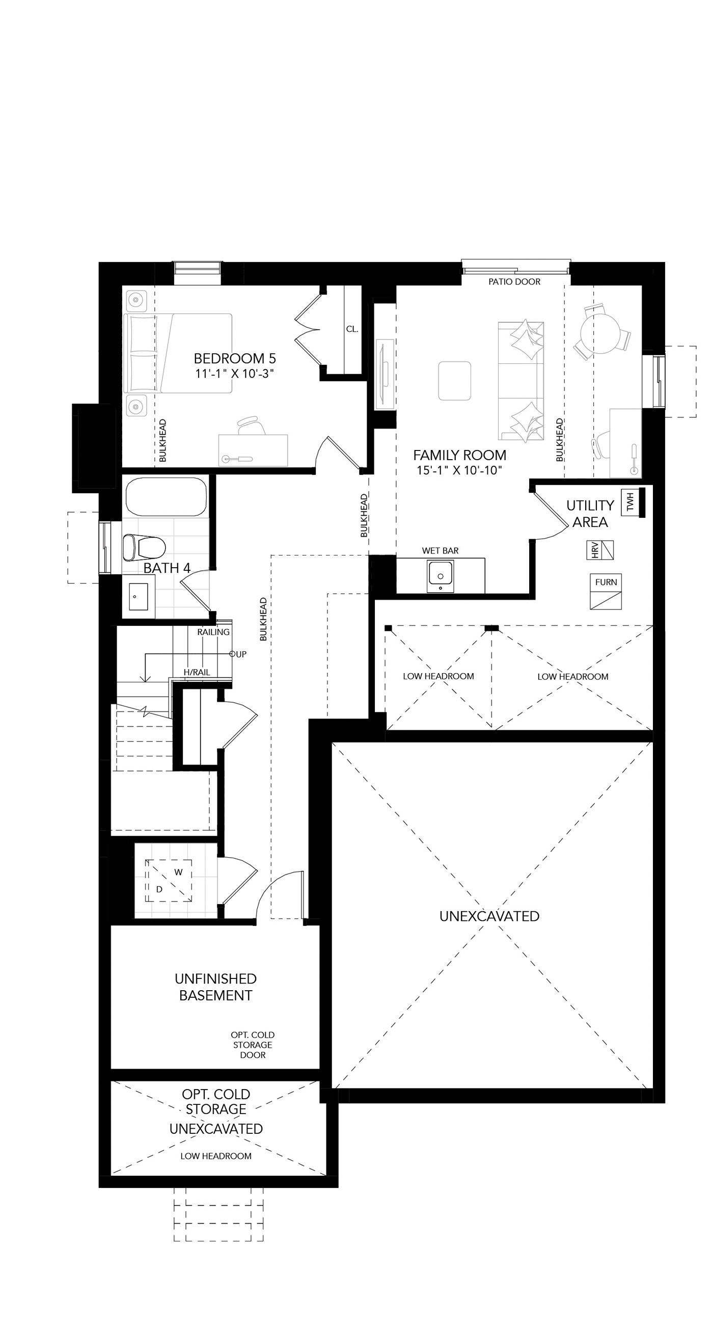
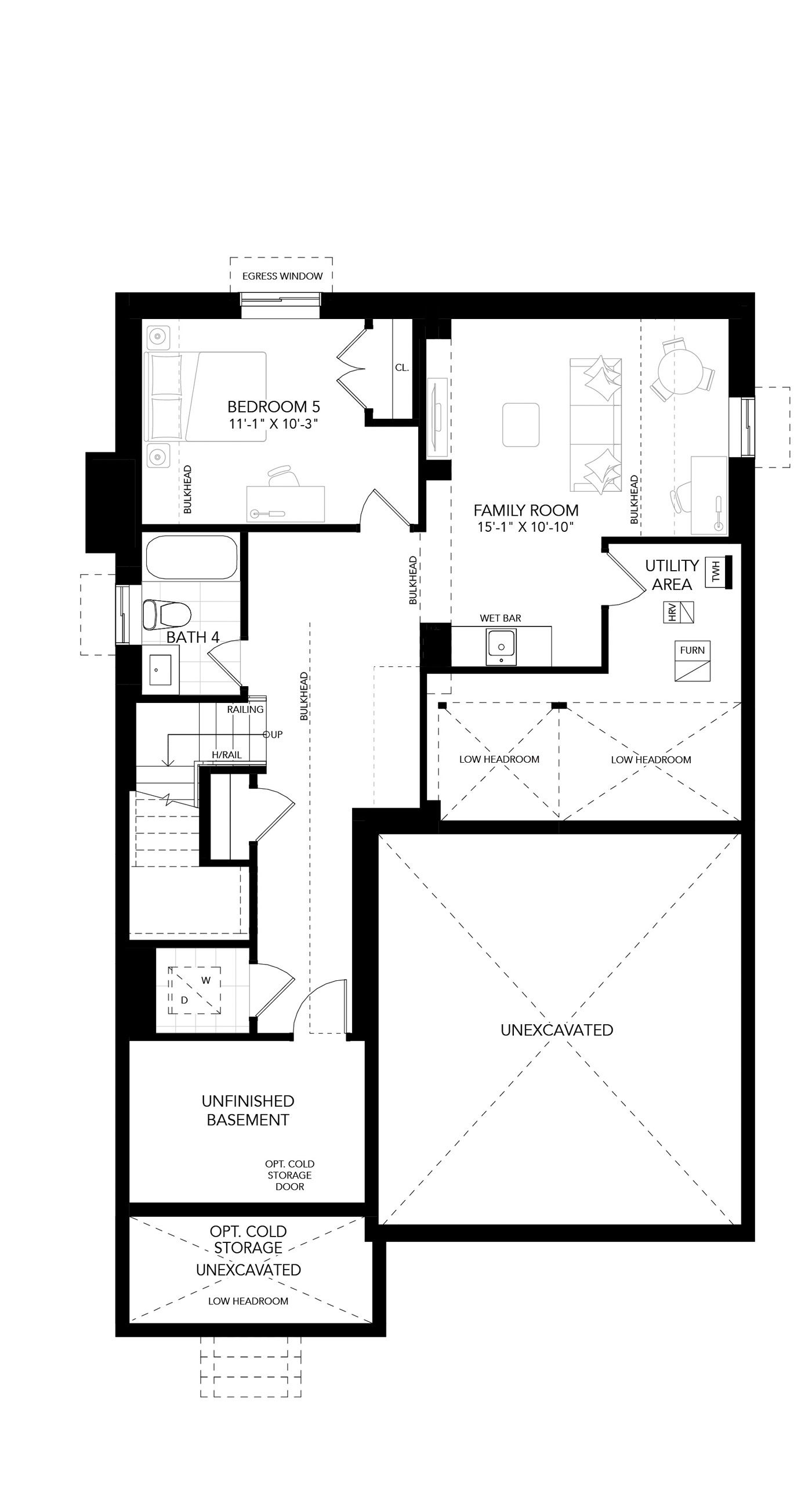
Discover The Springbrook—a spacious 40′ detached home designed for comfort and style. The L-shaped kitchen with island flows into a large great room, perfect for both everyday living and entertaining. A large garage offers ample storage, and a mudroom adds convenience. Upstairs, the primary bedroom retreat features an ensuite and two walk-in closets, while a second bedroom with its own ensuite adds flexibility. Two more bedrooms, a full bathroom, and a laundry room enhance the home’s functionality. The basement includes rough-in plumbing for an optional bathroom and space for cold storage. Designed with smart layout options, The Springbrook adapts to your lifestyle with ease.

4
3.5

Floorplan Details

Download Floorplan
Greater Home Guarantee Seal of Approval

“Greater Home” by Great Gulf, is our promise to offer homeowners a better built home.

Learn More

Interested?
Let us know!

Another Great Gulf community, perfect for family living. Interested in learning more? Get in touch with us by completing the form .

Loading...