Skip to content
 Featured elevation rendering of the The Bennett floorplan
The Bennett
Elevation A Shown
Milton Village

The Bennett

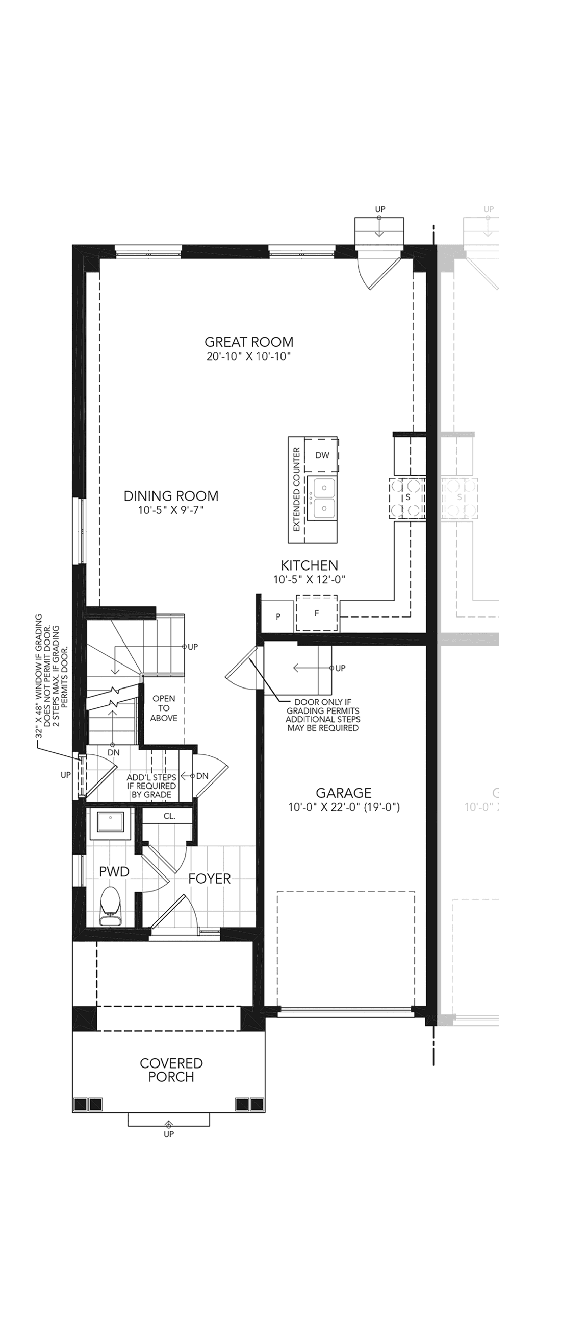
semi detached |1620 - 1635 sq.ft.

Introducing our semi-detached Bennett model featuring 3 bedrooms and 2.5 bathrooms. The traditional exterior architecture blends brick and stucco details for a timeless appeal. Enjoy the functional open-concept layout, perfect for family living and entertaining. The L-shaped Kitchen opens up to a spacious Great Room to accommodate your guests. Retreat to the calming primary bedroom oasis for privacy and relaxation. Our meticulously designed homes prioritize quality craftsmanship and modern finishes for the perfect blend of style and comfort.

3
2.5

Floorplan Details

Download Floorplan
Greater Home Guarantee Seal of Approval

“Greater Home” by Great Gulf, is our promise to offer homeowners a better built home.

Learn More

Interested?
Let us know!

Another Great Gulf community, perfect for family living. Interested in learning more? Get in touch with us by completing the form .

Loading...