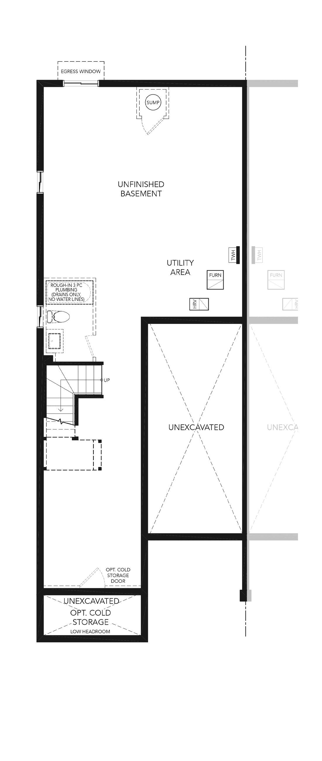
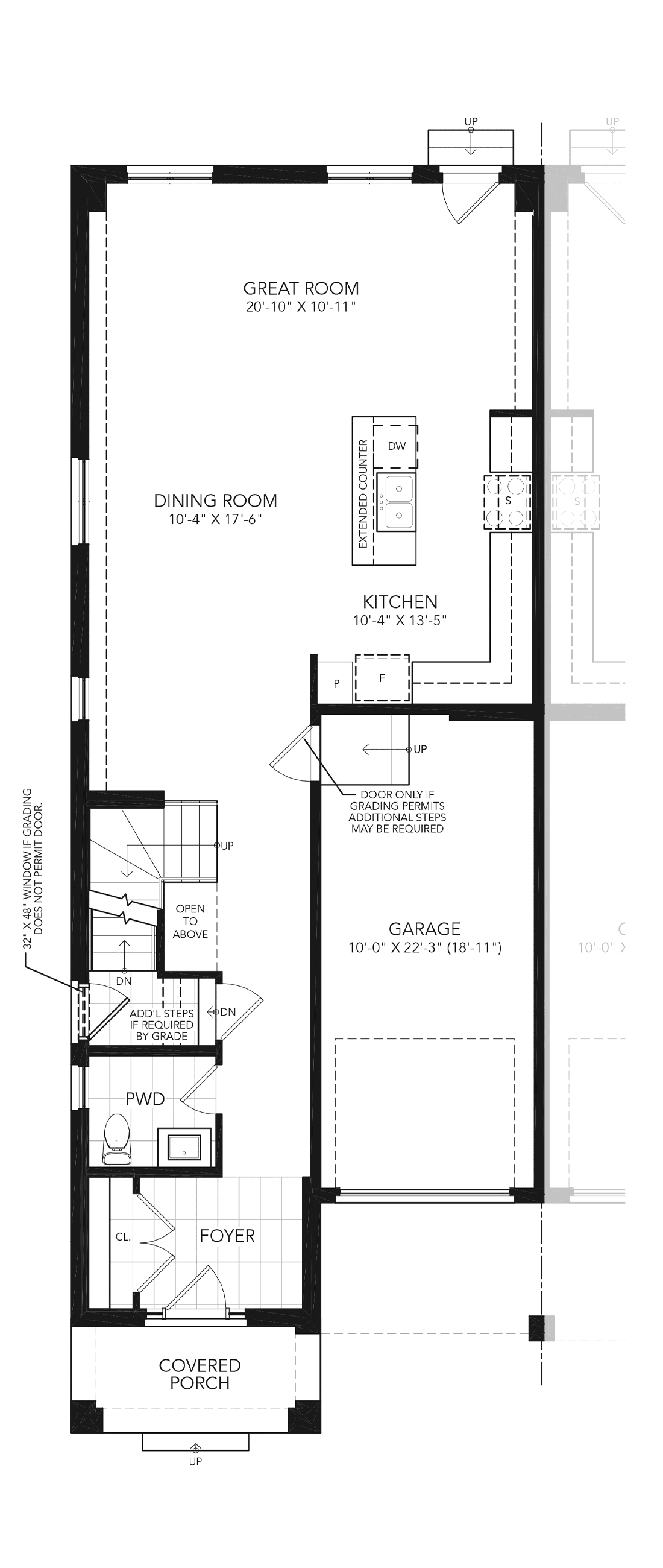
Discover the Oakview—a thoughtfully designed semi-detached home that perfectly blends style, space, and comfort. The main floor showcases a functional L-shaped kitchen with a central island, making it the ideal spot for meal prep, entertaining, or everyday family life. The adjoining great room offers a spacious and welcoming area for gatherings.. Upstairs, the primary bedroom retreat provides a peaceful haven with a private ensuite and walk-in closet. Three additional bedrooms, a full bathroom, and a dedicated laundry room deliver comfort and practicality for growing families. The basement is ready for future possibilities, featuring rough-in plumbing for an optional bathroom and available cold storage to meet evolving needs. The large garage ensures plenty of room for storage and convenience. With flexible layout options and timeless design elements, the Oakview offers a modern living experience crafted to support your lifestyle today—and into the future.

“Greater Home” by Great Gulf, is our promise to offer homeowners a better built home.
Learn More
First Floor
Second Floor
BasementAnother Great Gulf community, perfect for family living. Interested in learning more? Get in touch with us by completing the form .