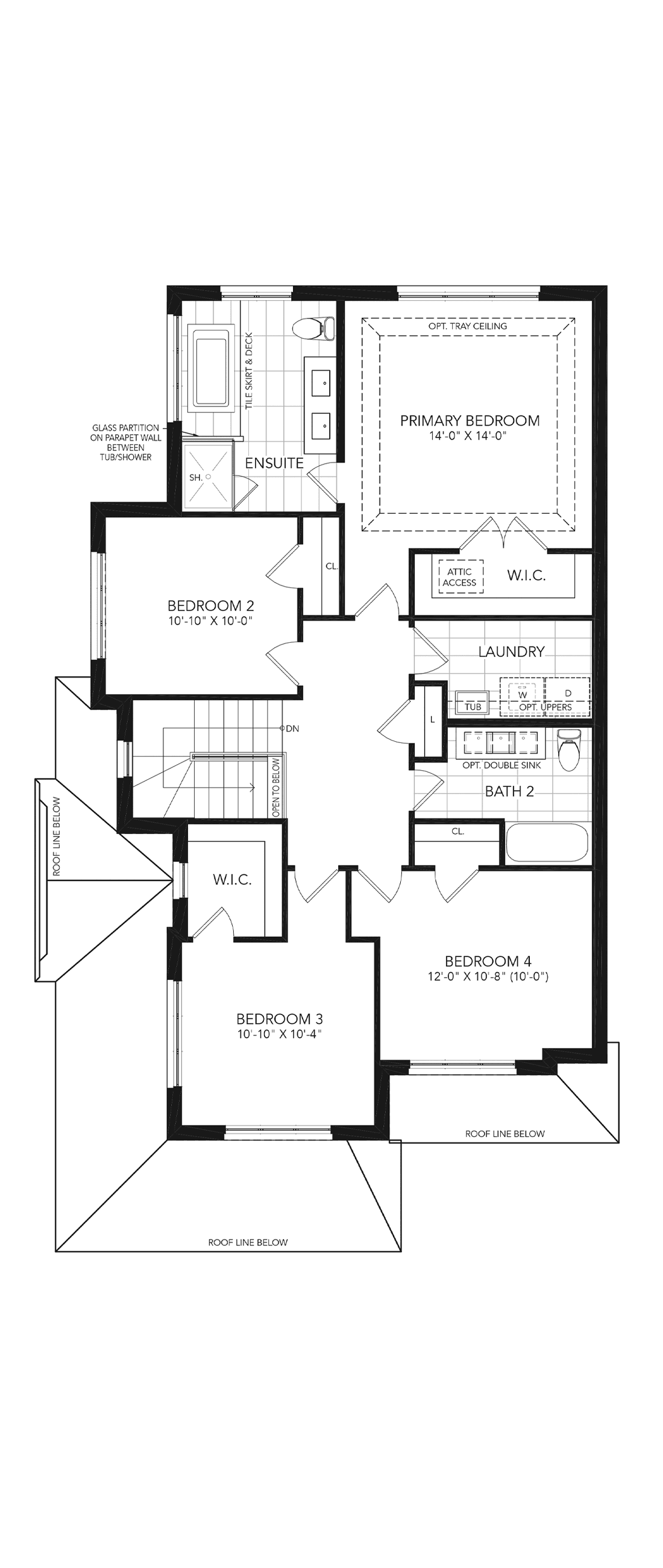
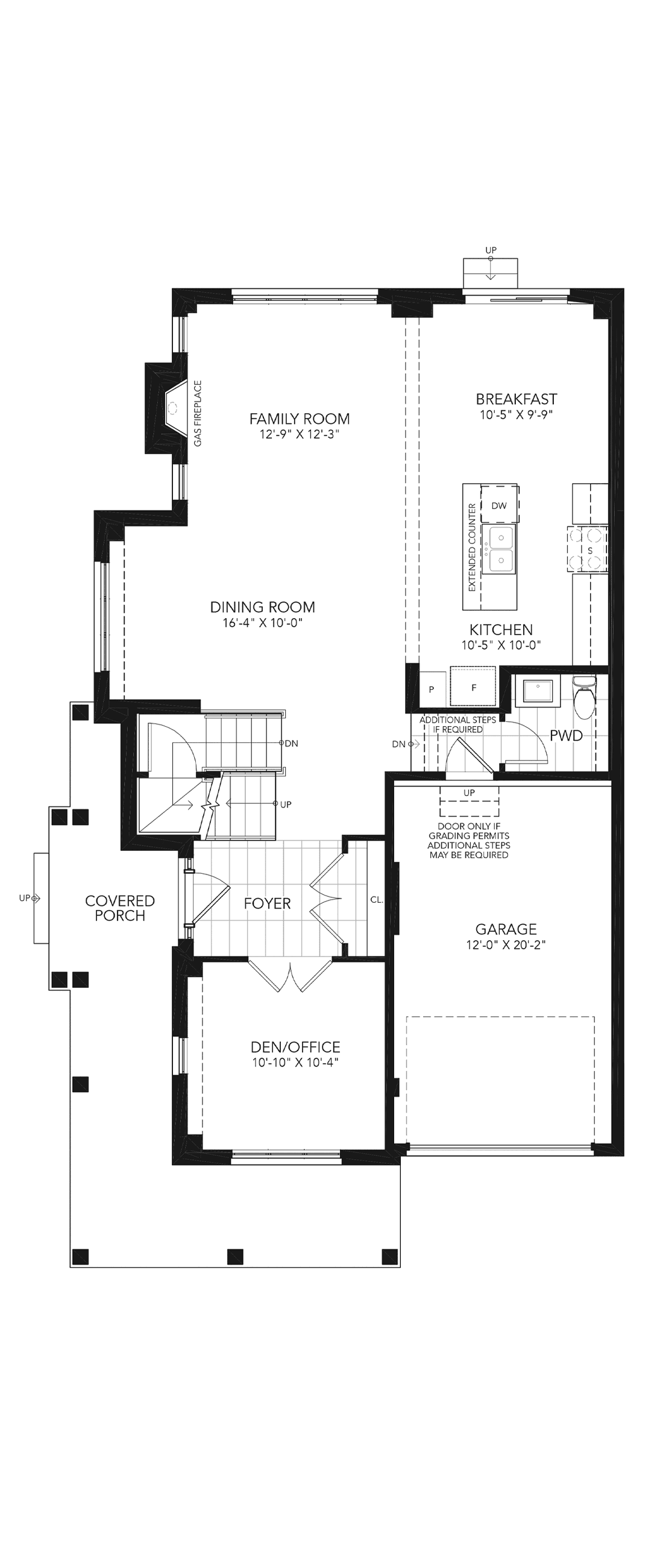
Welcome to The Victoria, a charming residence with timeless appeal situated on a 31' lot. This 4-bedroom, 2.5-bathroom home is designed to embrace both comfort and style. Gracing the facade is a welcoming front porch, setting the stage for a warm and inviting atmosphere. Inside, the thoughtfully crafted layout combines functionality with elegance. The spacious kitchen seamlessly connects with the family and dining areas, creating an ideal space for both family living and entertaining. Upstairs, the primary bedroom offers a private retreat with an ensuite bathroom and spacious walk-in closet, providing a tranquil escape. Additional bedrooms cater to various needs, ensuring versatile living spaces for the entire family. Elevating everyday convenience, The Victoria boasts a second-floor laundry room, adding a modern and practical touch to your daily routine.

“Greater Home” by Great Gulf, is our promise to offer homeowners a better built home.
Learn More
First Floor
Second Floor
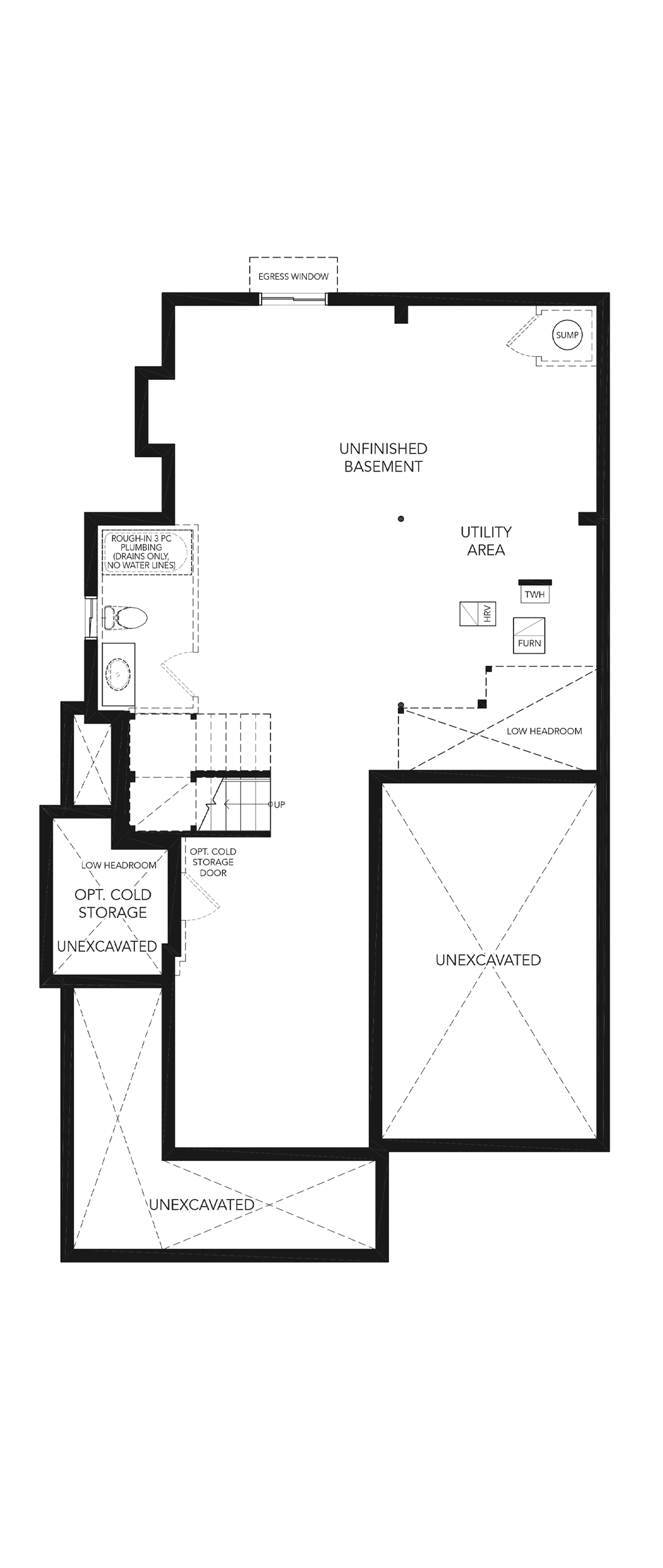
BasementAnother Great Gulf community, perfect for family living. Interested in learning more? Get in touch with us by completing the form .