Skip to content
 Featured elevation rendering of the Blush floorplan
Blush
Elevation A Shown
Whitby Meadows

Blush

singles 36' |1820 - 1835 sq.ft.

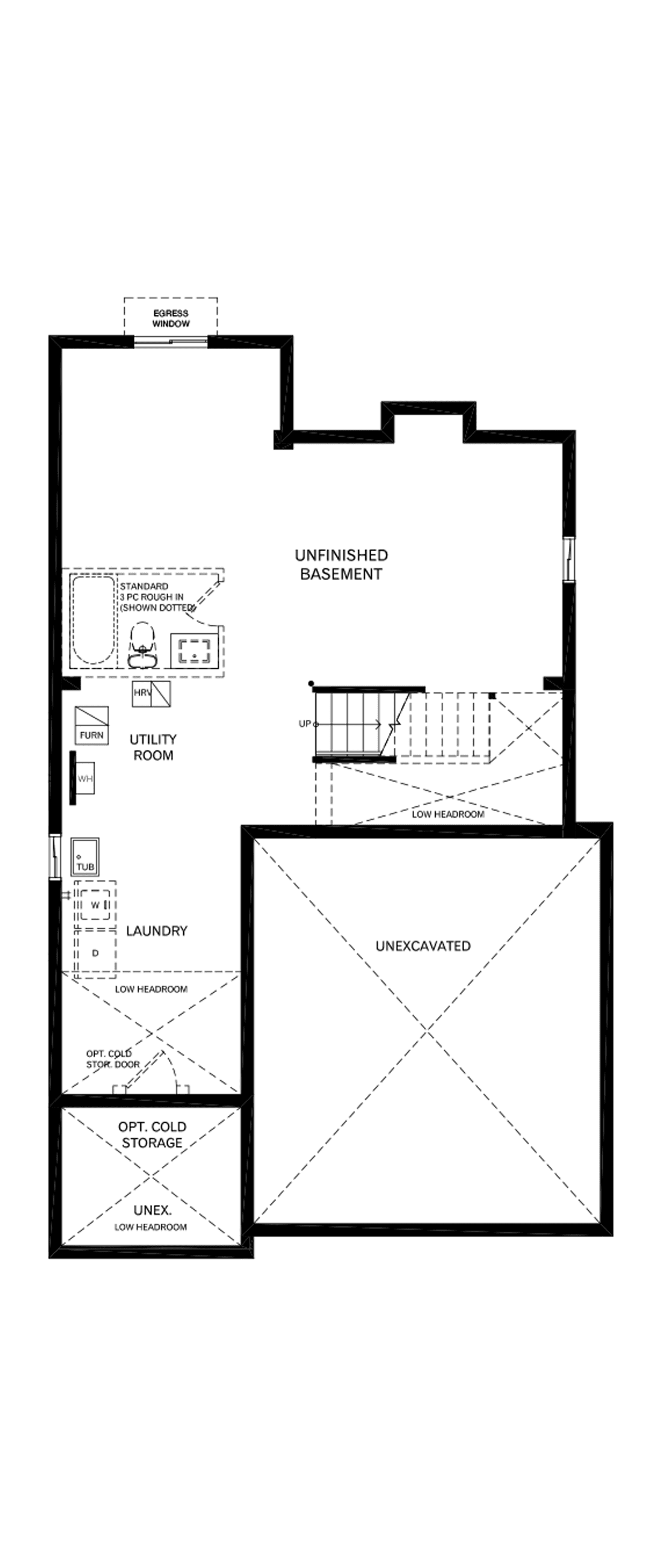
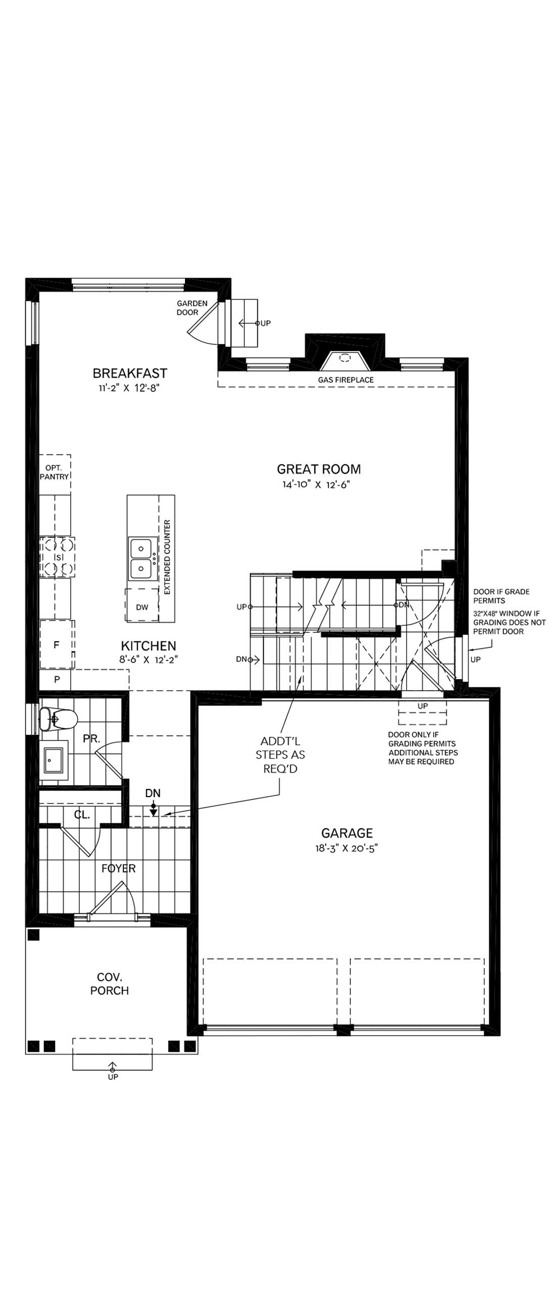
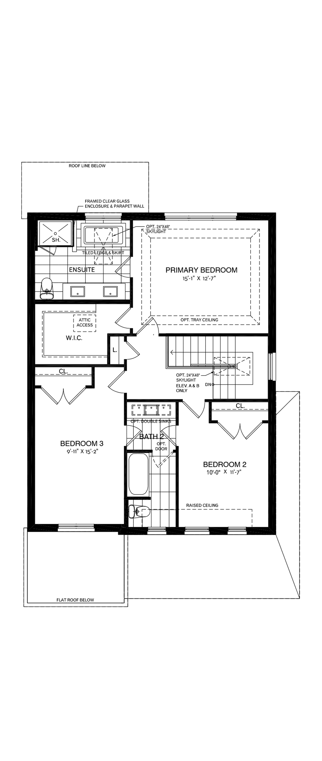
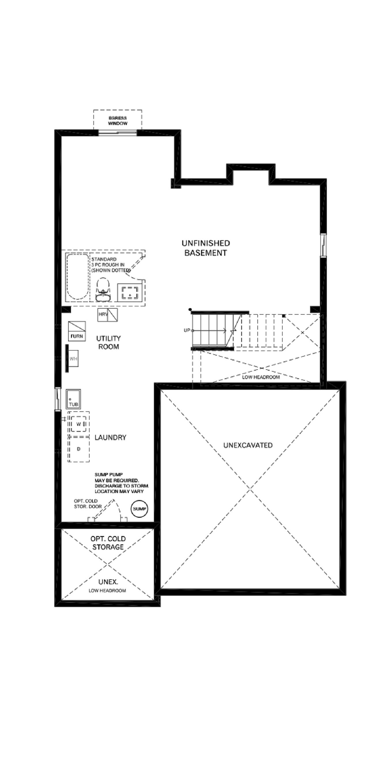
The Blush - Where luxury meets comfort. Step into this detached home featuring an inviting open-concept kitchen with island and breakfast nook. Enjoy cozy evenings in the large great room with fireplace, and convenience of a foyer with powder room. With a 2-car garage, laundry room, and optional features like cold storage and rough-in plumbing, Blush offers tailored living. Upstairs, discover a primary bedroom with ensuite and walk-in closet, plus 2 additional bedrooms and another bathroom. Elevate your lifestyle with optional finishes and a customizable basement.

3-4
2.5

Floorplan Details

Download Floorplan
Greater Home Guarantee Seal of Approval

“Greater Home” by Great Gulf, is our promise to offer homeowners a better built home.

Learn More

Stylish interiors

Relax in these open and airy spaces.

Interested?
Let us know!

Another Great Gulf community, perfect for family living. Interested in learning more? Get in touch with us by completing the form .

Loading...